Beschrijving

Prachtig modern en turn-key herenhuis van ca. 200 m² in de geliefde wijk Veemarkt – per direct beschikbaar voor € 4.250,- per maand exclusief gebruikerslasten.

Omschrijving
Ben je op zoek naar een turn-key woning met alles erop en eraan, op een fantastische locatie in Utrecht? Dan is dit moderne, royale en duurzame herenhuis van circa 200 m² een unieke kans. De woning beschikt over maar liefst vier volwaardige verdiepingen, een praktische indeling, een eigen parkeerplaats én meerdere buitenruimtes.
Op het privéterras aan de achterzijde geniet je van je koffie in de ochtendzon. De gemeenschappelijke binnentuin is ideaal voor kinderen om veilig te spelen, en op het riante dakterras op de bovenste verdieping heb je prachtige uitzichten over Utrecht en zon tot in de late uurtjes. Dankzij de ruimte en indeling is de woning zeer geschikt voor een groot gezin, maar ook voor een stel dat op zoek is naar een ruim opgezet huis met veel mogelijkheden.

De woning is gelegen in de geliefde wijk Veemarkt. Binnen tien minuten lopen bereik je het vernieuwde winkelcentrum De Gaard, met een bakker, slager, restaurants, terrasjes, diverse speciaalzaken en een grote supermarkt. Het stadscentrum ligt op slechts tien minuten afstand via de gezellige Biltstraat. Sportvoorzieningen, scholen, kinderopvang en groenvoorzieningen liggen op korte afstand. Ook de uitvalswegen zijn uitstekend bereikbaar.

Indeling
Begane grond:
Entree, hal met meterkast, toiletruimte en toegang tot de royale leefkeuken. Aan de voorzijde bevindt zich een moderne en zeer complete keuken, uitgerust met o.a. een combi-oven/magnetron, stoomoven, vaatwasser, Quooker en strak geïntegreerde kookpitten in het werkblad. De sfeervolle gashaard en de openslaande deuren naar de achtertuin zorgen voor een warme en uitnodigende leefruimte. De achtertuin beschikt over een aangebouwde berging en vormt een natuurlijke overgang naar het privéterras en de gemeenschappelijke binnentuin.

Eerste verdieping:
Ruime en open woonverdieping met veel lichtinval. Deze verdieping beschikt eveneens over een gashaard en een Frans balkon aan beide zijden, waardoor een bijzonder ruimtelijk en open gevoel ontstaat.

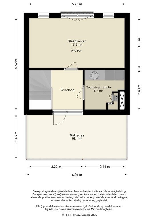
Tweede verdieping:
Royale overloop, geschikt als werkplek, hobbyruimte of garderobe. Hier kan eenvoudig een extra afgesloten kamer worden gerealiseerd; tevens is er een voorbereiding voor een sauna. Verder biedt deze verdieping een hoofdslaapkamer aan de voorzijde, een tweede slaapkamer aan de achterzijde en een moderne badkamer met ligbad, inloopdouche, tweede toilet, wastafel en spiegel met verwarming. Aan de achterzijde bevindt zich een breed balkon over de gehele woningbreedte.

Derde verdieping:
Overloop, grote slaapkamer aan de achterzijde met Frans balkon, eventueel te splitsen in twee kamers. Verder is er een aparte wasruimte met keukenblok, extra koelkast, wasmachine-aansluiting en CV-opstelling. Aan de voorzijde is toegang tot het ruime dakterras met een prachtig uitzicht over Utrecht.

Bijzonderheden
- Turn-key woning met veel ruimte, comfort, duurzaamheid en mogelijkheden
- Bouwjaar 2015
- 12 zonnepanelen
- Alarmsysteem aanwezig
- Privéterras, gemeenschappelijke binnentuin (NO) en ruim dakterras (ZW)
- Eigen parkeerplaats op het binnenterrein (laadpunt voorbereid)
- Regelmatig activiteiten voor jong en oud, georganiseerd door de VvE (vrijwillige deelname)
- VvE-bijdrage gemeenschappelijke binnentuin + parkeerterrein: € 48,17 per maand
- Eindschoonmaak verplicht
- Huurtermijn minimaal 12 maanden
- Borg is gelijk aan 2 maanden huur
- Beschikbaar per direct

Prijs
€ 4.250,- per maand inclusief stoffering, meubilering en keukenapparatuur. Exclusief gebruikerslasten (gas/water/elektra, tv, internet en gemeentelijke belastingen).

Voor meer informatie of het plannen van een bezichtiging kunt u contact met ons opnemen of zich inschrijven via onze website.

Kenmerken