| Prijs | € 4.125.000,- k.k. |
| Type object | Villa, woonhuis, vrijstaande woning |
| Perceeloppervlakte | 1.000 m² |
| Woonoppervlakte | 420 m² |
| Aanvaarding | In overleg |
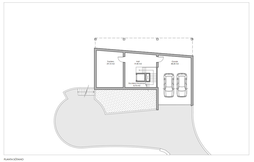
Villa Sagitta – Exclusieve designvilla met uitzicht op zee! Welkom bij Villa Sagitta: een architectonisch meesterwerk op een toplocatie in Jávea, uitkijkend over het prachtige Isla del Portixol. Hier woon je op een van de meest begeerde plekken van de Costa Blanca, waar rust, ruimte en luxe samenkomen. Deze moderne villa beslaat ruim 420 m² gebruiksoppervlakte, verdeeld over drie woonlagen en gebouwd op een royaal perceel van 1.605 m². Alles ademt klasse en comfort, van het minimalistische design tot de hoogwaardige afwerking. Indeling Op de begane grond vind je drie comfortabele slaapkamers, elk met een eigen badkamer en ingebouwde kasten. Er zijn ook twee ruime inloopkasten, een stijlvolle entreehal, en een deels overdekt terras met directe toegang tot het zwembad. Op de eerste verdieping wacht de indrukwekkende master suite met inloopkast en luxe badkamer van maar liefst 19 m². De royale living met open keuken (77 m²!) sluit naadloos aan op een panoramisch terras van 125 m². Perfect voor loungen, dineren of simpelweg genieten van het uitzicht. De souterrain biedt een dubbele garage, een ruime berging en een hal. Highlights - 4 slaapkamers (optioneel 5e slaapkamer mogelijk) - 5 luxe badkamers - Privé zwembad van 10 x 5 meter met zoutwaterinstallatie en tegenstroom - Dubbele garage en veel extra bergruimte - Interne lift mogelijk - Voorzien van airconditioning en alarmsysteem - Optie voor spa of wellnessruimte - Strakke afwerking met keramische vloeren, houten trappen, maatwerk keuken en badkamers - Spectaculair zeezicht vanaf de terrassen - Perceel van 1.605 m² - Gebruiksoppervlakte woning: ca. 420 m² - Terrasoppervlak: ruim 125 m² - Bouw gereed in overleg, volledige afwerking naar wens koper - De vraagprijs is exclusief 10% BTW - Inventaris over te nemen voor € 130.000,- Design & Comfort Villa Sagitta combineert moderne elegantie met slimme functionaliteit. Denk aan vloer-tot-plafond ramen, strak stucwerk, natuurlijke materialen en verfijnde details. Alles is tot in de puntjes af te stemmen op jouw persoonlijke smaak. De omgeving Jávea is een charmante kustplaats met een indrukwekkend decor van bergen, zee en natuurparken. De 20 kilometer lange kustlijn biedt idyllische baaien, het bekende zandstrand Arenal en gezellige restaurants. Of je nu permanent wil wonen of investeren in een tweede thuis in Spanje: dit is dé plek.
| Vraagprijs | € 4.125.000,- k.k. |
| Aanvaarding | In overleg |
| Aangeboden sinds | Vrijdag 20 juni 2025 |
| Laatste wijziging | Vrijdag 15 augustus 2025 |
| Type object | Villa, woonhuis, vrijstaande woning |
| Soort bouw | Bestaande bouw |
| Bouwjaar | 2025 |
| Isolatievormen | Volledig geïsoleerd |
| Perceeloppervlakte | 1.000 m² |
| Woonoppervlakte | 420 m² |
| Inhoud | 1.500 m³ |
| Oppervlakte gebouwgebonden buitenruimte | 125 m² |
| Aantal bouwlagen | 2 |
| Aantal kamers | 5 (waarvan 4 slaapkamers) |
| Ligging | Open ligging Vrij uitzicht |
| Type | Achtertuin |
| Badkamervoorzieningen Badkamer 1 | Douche Ligbad Toilet Wastafelmeubel |
| Badkamervoorzieningen Badkamer 2 | Douche Dubbele wastafel Toilet |
| Badkamervoorzieningen Badkamer 3 | Douche Dubbele wastafel Toilet |
| Badkamervoorzieningen Badkamer 4 | Douche Dubbele wastafel Toilet |
| Heeft airco | Ja |
| Heeft een alarm | Ja |
| Tuin aanwezig | Ja |
| Heeft domotica | Ja |
| Heeft zonnecollectoren | Ja |
| Heeft een zwembad | Ja |
| Heeft ventilatie | Ja |
| Kadastrale aanduiding | Abstede C 4128 |
| Perceeloppervlakte | 1.000 m² |
| Omvang | Geheel perceel |
| Eigendomsituatie | Eigen grond |